• ul. Styczyńskiego 29, 41-500 Chorzów
Sprzedaż

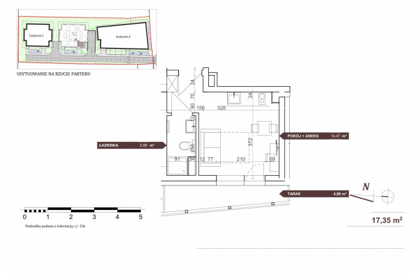
Kawalerka z balkonem

Gliwice, Pszczyńska
12 680,12 PLN /m2
220 000 PLN
  • Powierzchnia: 17,35 m2
  • Liczba pokoi: 1
  • Piętro: 1/7

Opis

W ofercie sprzedaży mamy kawalerki w ścisłym Centrum Gliwic.


Doskonała lokalizacja przy Politechnice Śląskiej dla studentów oraz osób ceniących się bliskość miasta.
Oferowane Mikro Apartamenty są wybudowane w podwyższonym standardzie wykończenia deweloperskiego.
Budynki zaprojektowane są w nowoczesnych technologiach zapewniających klientom wyjątkowy komfort użytkowania.

Poprzez zastosowanie wysoko energooszczędnych materiałów elewacyjnych zapewnione będą niezwykle niskie koszty eksploatacji.

Wszystkie lokale parterowe posiadają tarasy wykonane z wysokiej jakości płyt tarasowych oraz ogrody do wyłącznego korzystania przez ich właścicieli.


Cechy wyróżniające :
Nowoczesna i elegancka architektura oraz wysublimowany klimat apartamentowca
Pralnio - suszarnie do dyspozycji użytkowników dlatego nie ma konieczności montowania pralek w mieszkaniu
Monitoring całą dobę wraz z recepcją
Podwyższony standard wykończenia deweloperskiego, w tym silikonowe samo oczyszczające się i najtrwalsze tynki zewnętrzne, wszystkie instalacje wewnętrzne, grzejniki, TV/SAT, Internet
Wysokiej klasy tynki oraz wylewki
Wyszukany komfort użytkowania przy jednoczesnej wysokiej energooszczędności
Eleganckie wykończenie klatek schodowych i korytarzy
Nowoczesne windy komunikacyjne
Profesjonalne zagospodarowanie terenu wokół budynku, nasadzenia i pielęgnacja terenów zielonych przez profesjonalną firmę ogrodniczą.


Koszty utrzymania są niskie z racji tego, że budynek jest nowy.
Z zaliczkami na wodę około 450 zł miesięcznie.
Teren jest monitorowany, obok znajduje się kilka kawiarni, restauracja slow-food, przystanki autobusowe. Do Placu Krakowskiego jest 500 m.

Jest to świetna inwestycja pod wynajem, ponieważ mimo mniejszych metraży czynsze oscylują na poziomie 1500-1700 zł miesięcznie.


Wykończenie pod klucz
Do zaoferowania mamy kilka pakietów wykończeniowych dla osób którzy w krótkim czasie i niewielkim budżecie chcą przeprowadzić niezbędne prace.
Mamy również propozycje indywidualnego wykończenia dla klientów bardziej wymagających .

Kredytowanie
W ofercie mamy kilkanaście banków co daje możliwość dobrania najbardziej odpowiedniego kredytu hipotecznego. Możliwość kredytowania 100% zakupu- bez wkładu własnego.

Obsługa

BEZ PROWIZJI
Klient nie ponosi żadnych kosztów dodatkowych związanych z naszym pośrednictwem w zakupie.
Wystawiona cena jest ceną deweloperską.
Działamy w imieniu i dla dobra klienta, w związku z czym mamy możliwość negocjacji ceny i uzyskania promocyjnej oferty.

Masz pytania ?
Zapraszamy do kontaktu.
Zachęcamy również do obejrzenia mieszkania.
Umawiamy się w dogodnym dla Ciebie terminie.
Dyspozycyjność 7 dni w tygodniu.


Treść niniejszego ogłoszenia nie stanowi oferty handlowej w rozumieniu Kodeksu Cywilnego. więcej

Informacje

Numer oferty111
Typ transakcjiSprzedaż
Cena220 000 PLN
Powierzchnia17.35 m2
Cena za m212 680,12 PLN / m2
Liczba pokoi1
Piętro1/7
Czynsz pln0
Rok budowy2024
Stan lokaludeweloperski
Standard wykończeniabardzo dobry
Typ budynkublok
Rynekpierwotny
Klatka schodowaczysta
Forma własnościwłasność
Liczba łazienek1
Głośnośćciche
Kuchniaaneks
Łazienkaz wc
OknaPCV
Podłogabeton
Ścianygładź gipsowa
Łącze internetoweświatłowód
Parkingparking podziemny
Typ balkonujest
Ogrzewaniemiejskie

Informacje dodatkowe

  • Osiedle zamknięte
  • Domofon
  • Winda

Lokalizacja

Kontakt